What do I think about after I received the drawings from customers ?
Determine the parameters
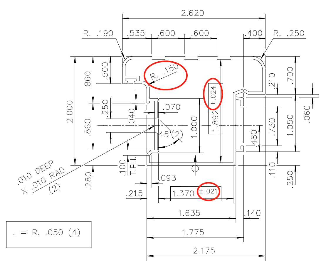
- Alloy and Temper
- Wall thickness
- Round corners
- Tolerance range


Design the surface treatment
Aluminum extrusions can be surface treated to give different aesthetics. When design an extrusion, bear in mind the type of finish you need and provide clear instructions about which sides of the extrusion are primariy visible surfaces.


Plan the application and assembly
Careful consideration should be gived to how the extrusions are used and assembled. The most common types of joints are hingers, srew ports and clip fits. But the aluminum extrusion really is the most extraordinarily versatile material which you’ll spot them everywhere, like #windows and #doors, #ElectricBusway, #CableChannel, #Housing, #LEDStrips,
#Pergolas, #Linear, #WorkBenches, #SolarMounting,
#SolarRack, #ContinuousGearedHinger,#RollerShutter

Weight up the costs
The cost of the final extrusion is a function of its weight and complexity along with the customized required.
✔ Quality specifications
✔ End-use length/purchase length
✔ Secondary fabrications
✔ Quantity – this order/annual requirements
✔ Packaging, handling, shipping
We will advise the quote for a range of design considerations. Tooling for hollow profiles is typically more expensive thean solid profiles but still offers great values when compared to alternative production methods.
If you’re wondering whether extruded aluminum might be a good choice in your next project, talk to me (guimiao.chen@moderne-al.com).

